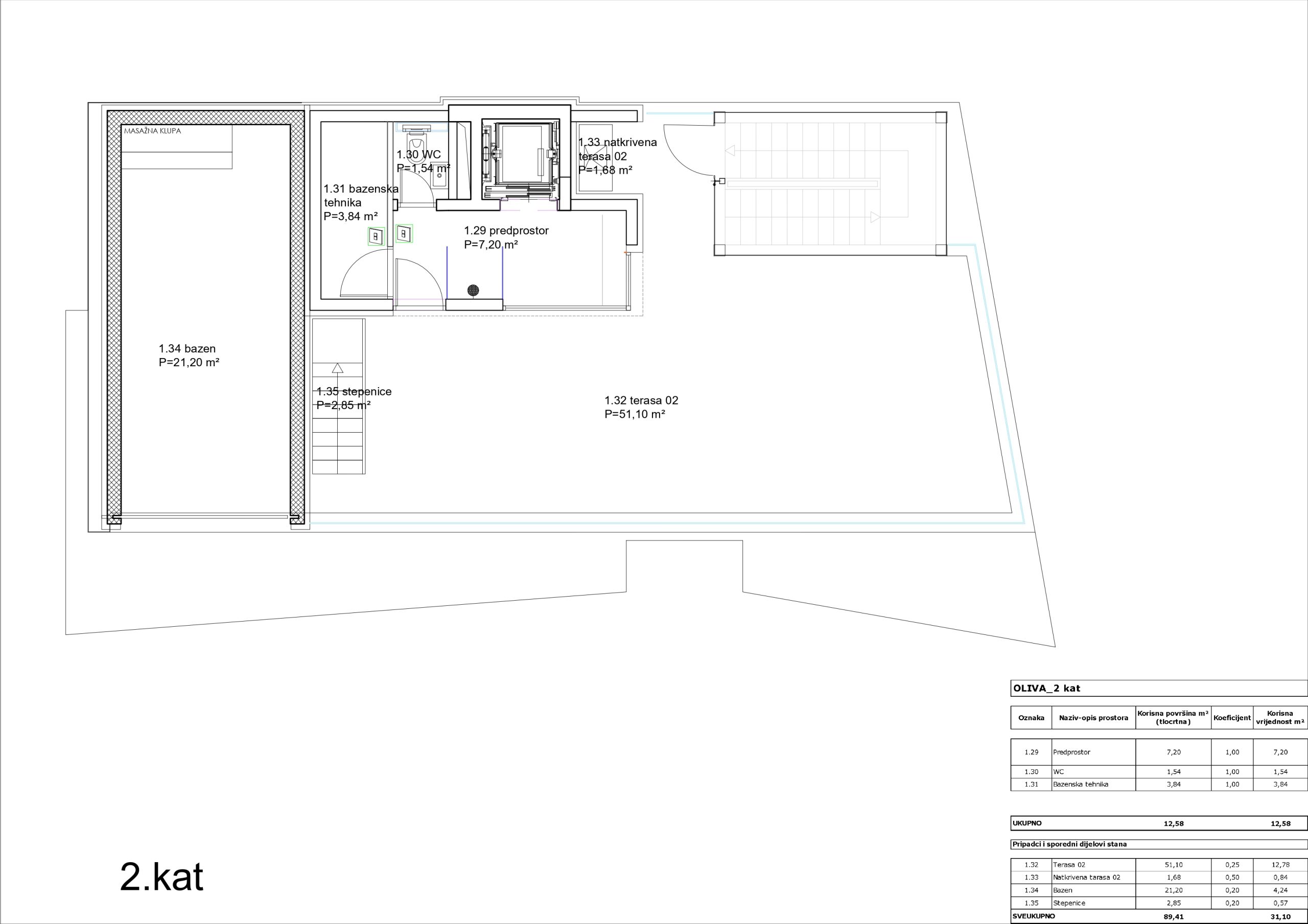
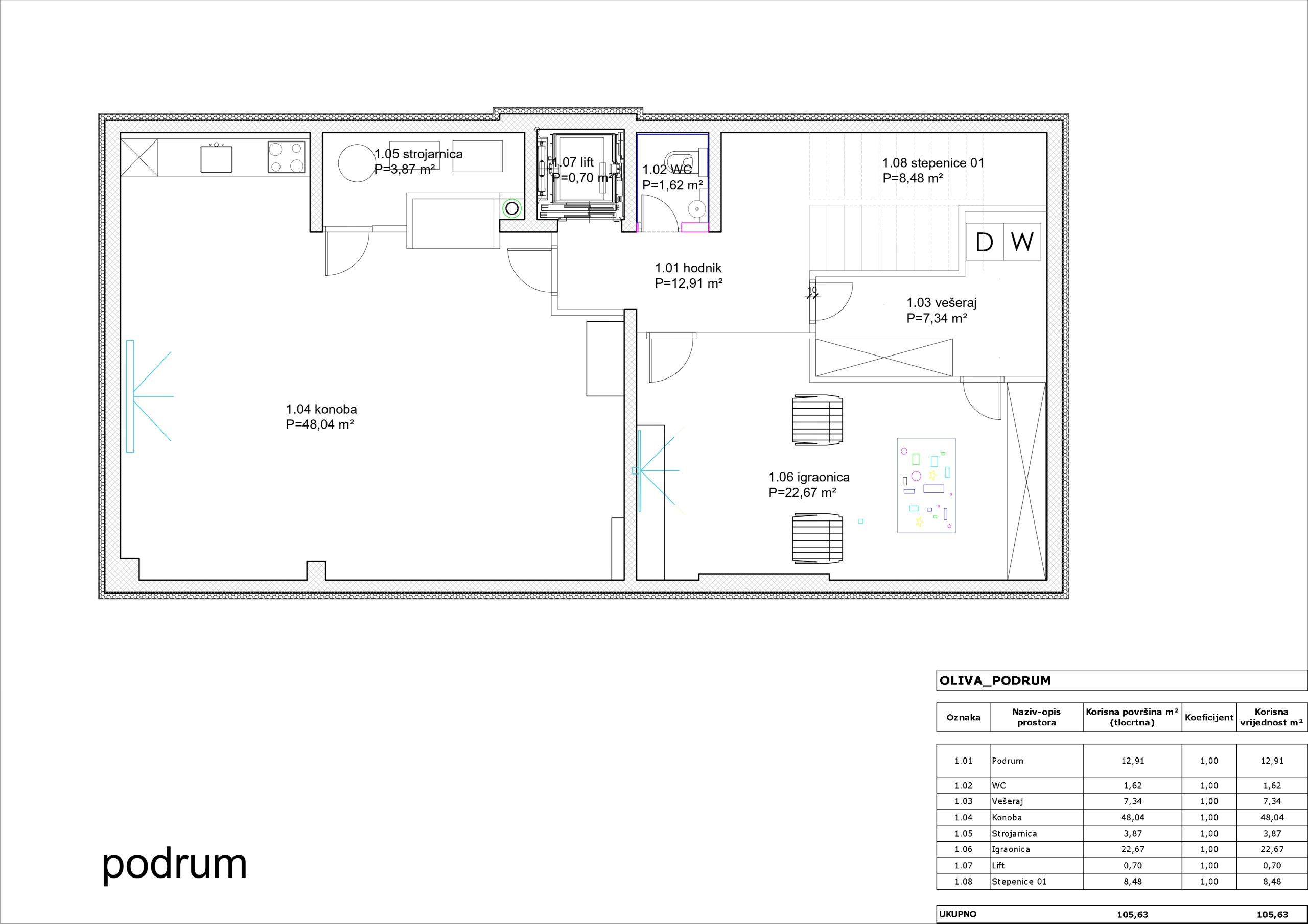
Vila Oliva nalazi se u prvom redu do mora, na izuzetnoj lokaciji koja nudi mir, privatnost i neposrednu blizinu mora. Namijenjena je onima koji traže spoj udobnosti, luksuza i jedinstvene lokacije uz more. Vila se sastoji od podruma, prizemlja, prvog kata i krovne terase. Podrum služi kao dodatni prostor za opuštanje i druženje, uz prateće prostorije koje omogućuju praktično i ugodno funkcioniranje kuće. Sve etaže međusobno su povezane liftom.
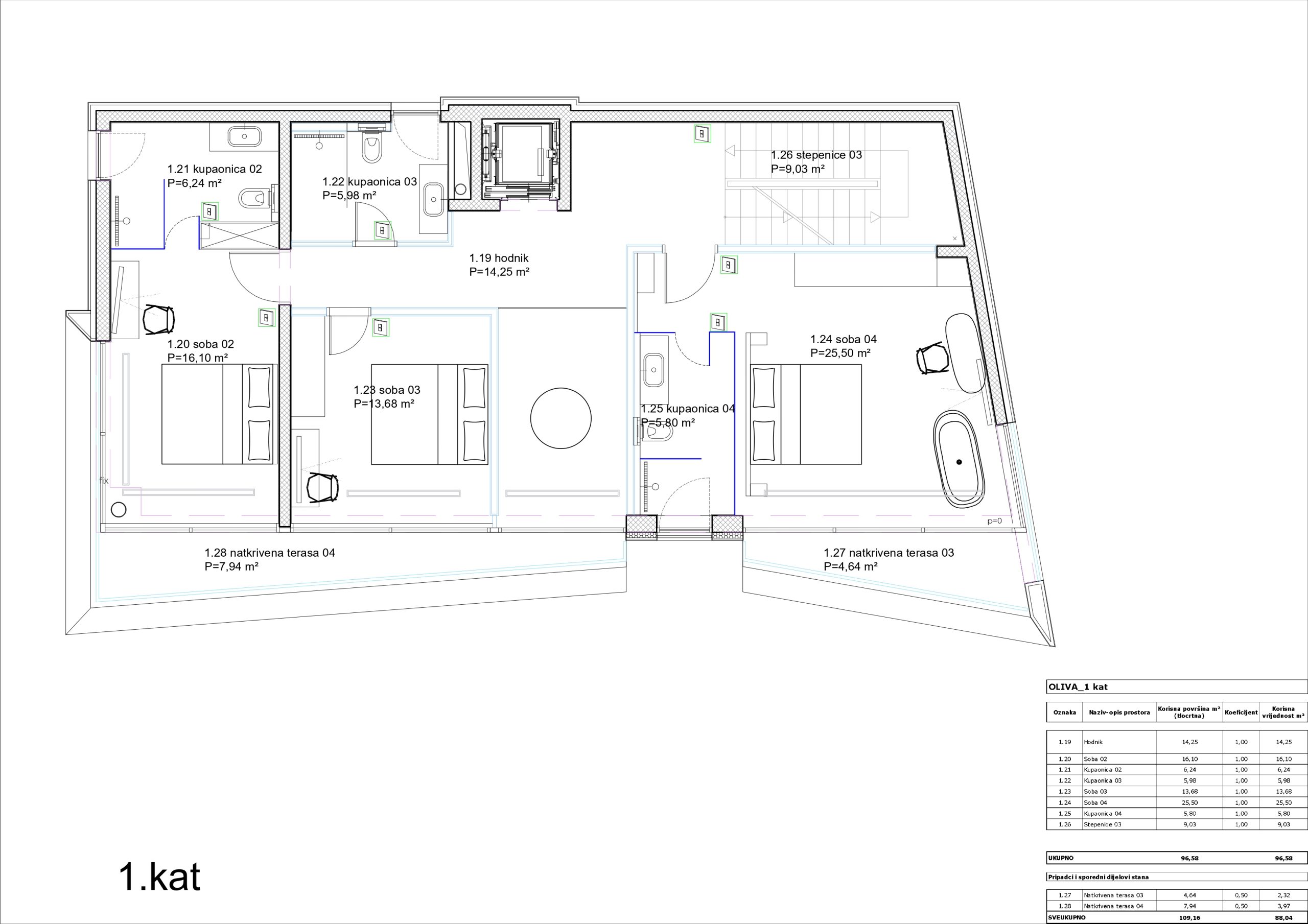
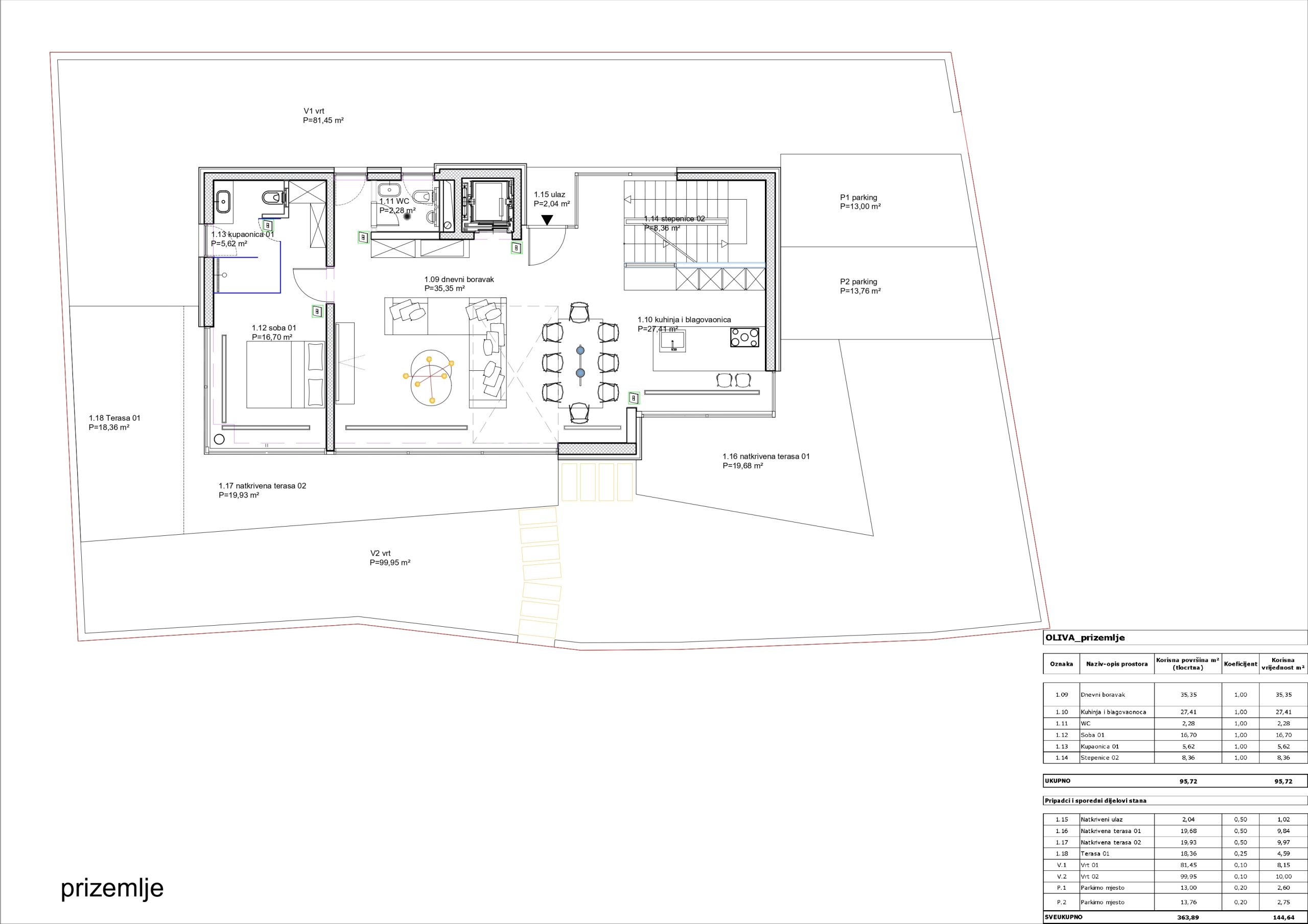
Prizemlje čini prostrani dnevni boravak, kuhinja i blagovaonica, s izlazom na terase. Na istoj etaži nalazi se i jedna spavaća soba s kupaonicom te dodatni WC. Na prvom katu smještene su spavaće sobe s vlastitim kupaonicama i izlazima na terase, osiguravajući mir i privatnost. Posebnu vrijednost ove kuće predstavlja prostrana krovna terasa površine 51 m² s bazenom, koja pruža privatni prostor za opuštanje i uživanje uz pogled na more.
Također opremljena je pametnim sustavom, koji omogućava potpunu automatizaciju i upravljanje svim funkcijama doma; od rasvjete, grijanja i klimatizacije do multimedije i same sigurnosti. Vila Oliva idealan je izbor za one koji traže mirnu i ekskluzivnu nekretninu uz more, s pažljivo osmišljenim rasporedom prostora i dodatnim sadržajima koji je izdvajaju na tržištu.



















