Die Villa Oliva befindet sich in erster Reihe zum Meer, in einer außergewöhnlichen Lage, die Ruhe, Privatsphäre und unmittelbare Nähe zum Meer bietet. Sie ist für all jene gedacht, die eine Kombination aus Komfort, Luxus und einer einzigartigen Lage direkt am Meer suchen. Die Villa besteht aus einem Untergeschoss, einem Erdgeschoss, einem Obergeschoss sowie einer Dachterrasse. Das Untergeschoss dient als zusätzlicher Bereich zur Entspannung und zum geselligen Beisammensein und verfügt über Nebenräume, die ein praktisches und angenehmes Wohnen ermöglichen. Alle Etagen sind durch einen Aufzug miteinander verbunden.
Im Erdgeschoss befinden sich ein großzügiger Wohnbereich, eine Küche und ein Essbereich mit Zugang zu den Terrassen. Auf derselben Etage gibt es zudem ein Schlafzimmer mit eigenem Bad sowie ein zusätzliches Gäste-WC. Im Obergeschoss sind Schlafzimmer mit eigenen Badezimmern und Terrassenzugängen untergebracht, die Ruhe und Privatsphäre gewährleisten. Einen besonderen Wert stellt die großzügige Dachterrasse mit einer Fläche von 51 m2 und Swimmingpool dar, die einen privaten Rückzugsort zum Entspannen und Genießen mit Meerblick bietet.
Die Villa ist außerdem mit einem Smart-Home-System ausgestattet, das eine vollständige Automatisierung und Steuerung aller Hausfunktionen ermöglicht – von Beleuchtung, Heizung und Klimatisierung bis hin zu Multimedia und Sicherheit. Die Villa Oliva ist die ideale Wahl für alle, die eine ruhige und exklusive Immobilie am Meer suchen, mit einem sorgfältig durchdachten Grundriss und zusätzlichen Ausstattungsmerkmalen, die sie auf dem Markt hervorheben.
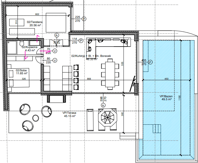
Hinter dem Hauptgebäude befindet sich ein zusätzliches, sorgfältig konzipiertes Objekt, das den Luxus, Komfort und die Exklusivität dieser Immobilie nochmals auf ein höheres Niveau hebt. Dieser Bereich ist als private Zone für Entspannung, Erholung und Freizeitaktivitäten gestaltet und vermittelt das Gefühl eines eigenen privaten Wellness-Resorts direkt am Meer.
Im Inneren des Gebäudes befindet sich ein beeindruckender Poolbereich mit einem Innen- und Außenpool, die miteinander verbunden sind und so ein ganzjähriges Badeerlebnis ermöglichen. Dieses besondere Konzept schafft das Ambiente eines luxuriösen Resorts und bietet ein einzigartiges Badeerlebnis – unabhängig von der Jahreszeit.
Der Bereich umfasst außerdem einen elegant gestalteten Wohnraum mit Küche, der sich ideal für gesellige Abende, Entspannung und gemeinsame Zeit mit Familie und Freunden eignet. Zusätzlich verfügt das Objekt über ein weiteres Schlafzimmer, das als komfortable Gästesuite genutzt werden kann. Ein separater Raum ist als Fitnessbereich vorgesehen und ermöglicht einen aktiven und gesunden Lebensstil in der Privatsphäre des eigenen Zuhauses. Für zusätzlichen Komfort steht zudem ein separates WC zur Verfügung.
Unterhalb des Gebäudes befindet sich eine Tiefgarage, die einen sicheren und diskreten Stellplatz für Fahrzeuge bietet und die Funktionalität sowie die Exklusivität dieser Immobilie zusätzlich unterstreicht.
Diese zusätzlichen Annehmlichkeiten verwandeln die Villa in ein privates Resort am Meer und schaffen einen einzigartigen Ort für Entspannung, Erholung und einen exklusiven Lebensstil. Die Villa Oliva wird exklusiv zum Verkauf angeboten und stellt eine seltene Gelegenheit dar, eine luxuriöse Immobilie in erster Reihe zum Meer zu erwerben – ideal für all jene, die Privatsphäre, Prestige und höchste Lebensqualität suchen.
Kontaktieren Sie uns für weitere Informationen zur Immobilie.






















Kontaktieren Sie uns für weitere Informationen zur Immobilie.